Zavřít ADMINISTRATIVNÍ BUDOVA PILANA KARBID V HULÍNĚ

 

PILANA Karbid s.r.o. je mladá rodinná česká firma zabývající se výrobou karbidových nástrojů. Firma sídlí v historickém továrním areálu nedaleko Hulína s 85 letou tradicí výroby řezných nástrojů. Za osm let své existence došlo k rozvoji výroby a ve firmě je dnes zaměstnaných 45 lidí. Díky tomuto rozvoji přestaly původní prostory dostačovat a vznikla potřeba vybudovat nový objekt. Ve dvou etapách vznikla nová hala a na ní navazující administrativní budova. I přes rychlý růst zůstala ve firmě potřeba být si na blízku. Komunikace uvnitř budovy a snaha zachovat mezi lidmi přiměřenou vzdálenost a vizuální kontakt, se proto stala hlavním tématem architektonického návrhu.

 

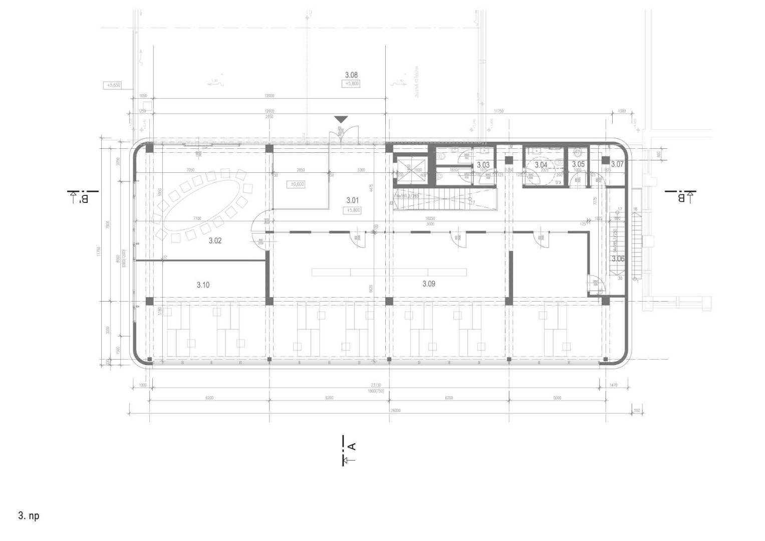
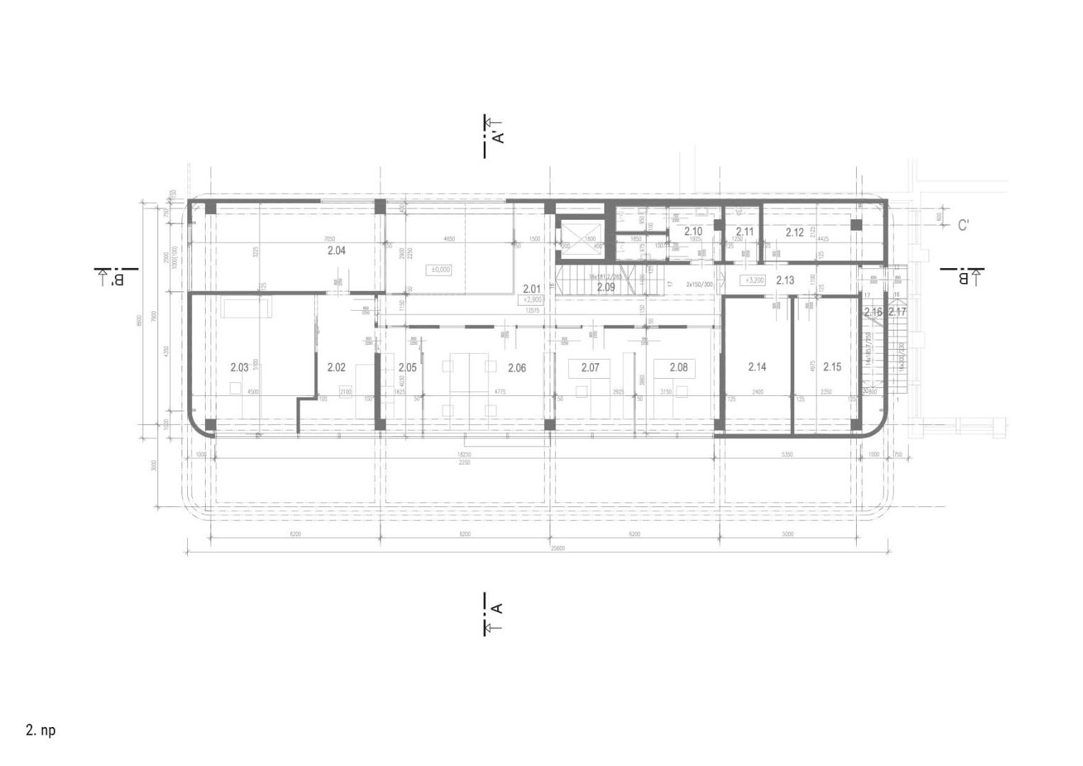
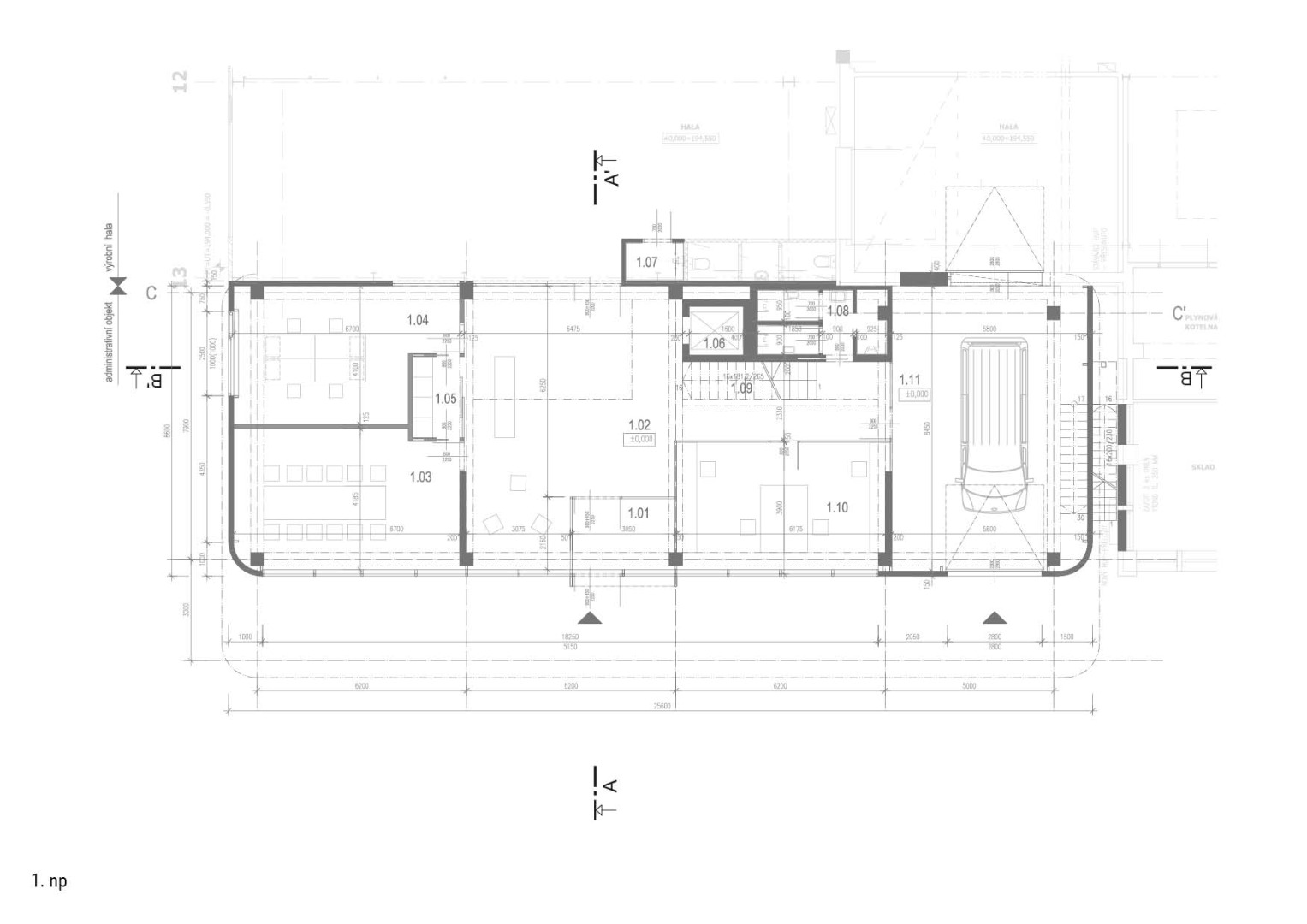
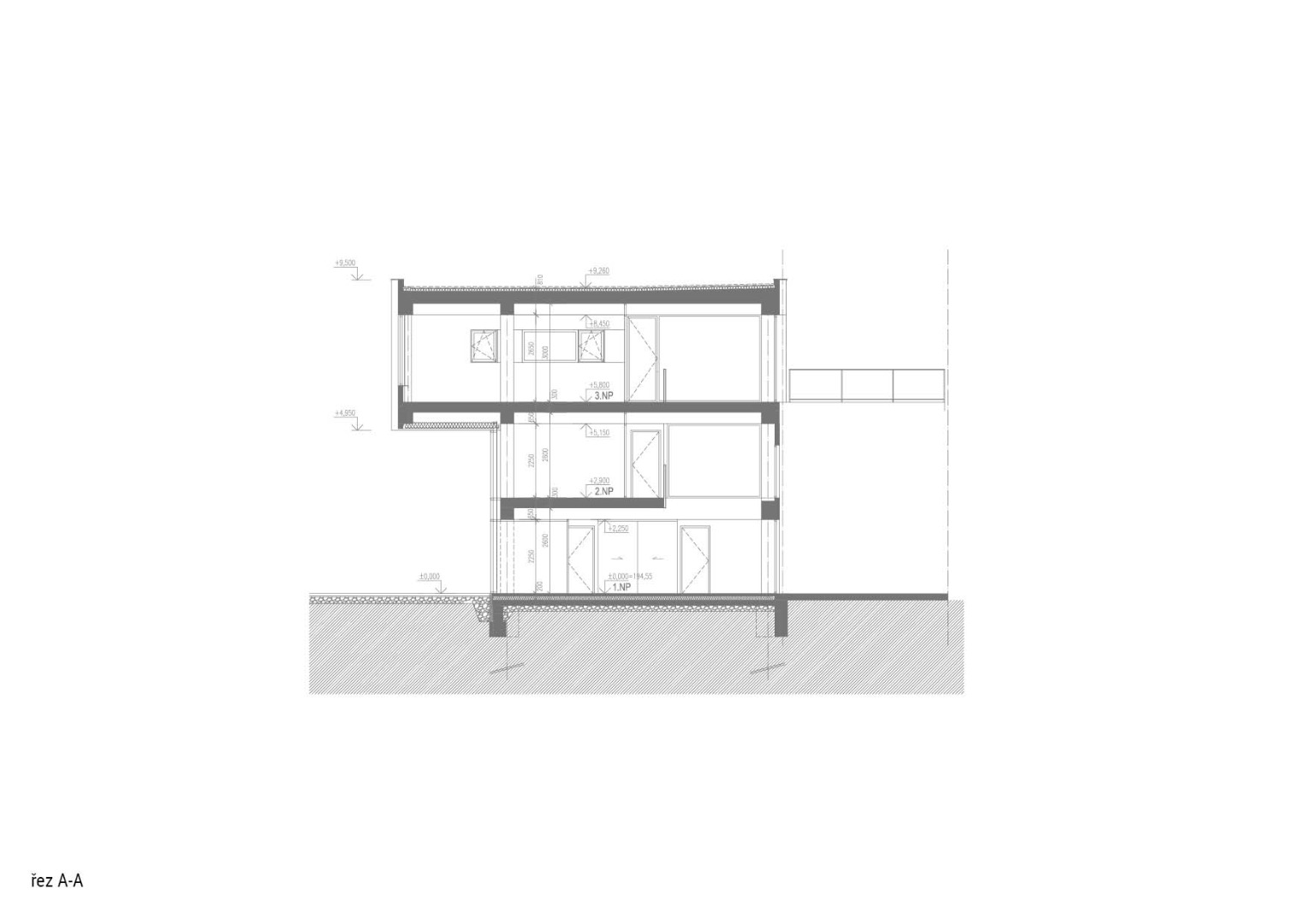
Tovární areál PILANA je zastavěným a vytíženým prostorem. Pro novou stavbu bylo důležité zohlednit omezený prostor bez perspektivy dalšího růstů do okolí. Na parcele o rozměru 2450 m2 vznikla nejdříve jednopodlažní hala a na ni navázala třípodlažní stavba s předsunutým/převislým horním patrem, které je možné v budoucnosti doplnit o další poschodí a předprostorem. Hala obdélníkového půdorysu splňuje přísné požadavky pro výrobu. Je zde dostatek denního světla, které proniká hlavními okny a světlíky záměrně orientovanými na severní stranu. Prostor je přehledný a čistý s celoročně stabilní teplotou pohybující se okolo 24°C. Hala má pochozí zelenou střechu a je opláštěná sendvičovými panely, které přechází na administrativní část. Třípodlažní budova administrativy je monolitickým betonovým skeletem, který je přiznaný v interiéru. Jednotlivé kanceláře mají svým rozměrem a nízkou světelnou výškou blíže pokojům v rodinných domech než v rozlehlých openspace. Důležitým komunikačním prvkem uvnitř objektu je malé zastřešené atrium, jímž proniká světlo. Stěny halové i administrativní části jsou ve velké míře transparentní, jen výtahová šachta a vstup do domu je zvýrazněný modrou firemní barvou. Z jedné budovy je možné vidět do druhé naopak, průhled na pracující firmu funguje také z exteriéru. Návštěvník vidí pohyb v budovách a naopak zaměstnanci vidí na přicházející. V atriu jsou ochozy fungující jako místo setkávání a zároveň cesta na zelenou střechu, ze které je vidět až na Hostýnské vrchy.

 

Společně s novými objekty došlo i k úpravě přiléhajícího parkoviště. I zde je pracováno s podobnými křivkami jako na administrativní budově, zároveň jsou zde vysázeny stromy, které by měly doplňovat zeleň na střeše.

 

Autoři:
ellement architects, s. r. o.
ing. arch. Hana Maršíková, ing. arch. Jitka Ressová Ph. D., MgA. Jan Pavézka

Spoluautoři:
ing. arch. Kateřina Páterová, ing. arch. Jakub Bachman, ing. arch. Ondřej Stolařík

Spolupráce:
ing. Pavel Ohnoutek /stavební profese/
ing. Pavel Gurecký /statika/

Foto:
BoysPlayNice, info@boysplaynice.com, www.boysplaynice.com

Ocenění:
Cena Ministerstva průmyslu a obchodu ČR za velkorysý přístup k novostavbě průmyslového objektu 


^

ellement architects s.r.o.
nad ovčírnou II. 1295, 76001 Zlín
Czech Republic



© ellement architects 2002 - 2025