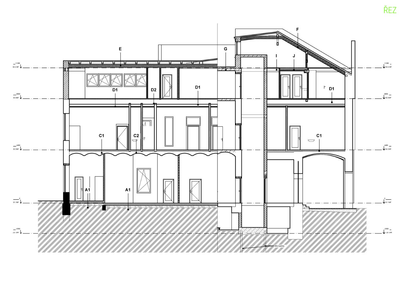
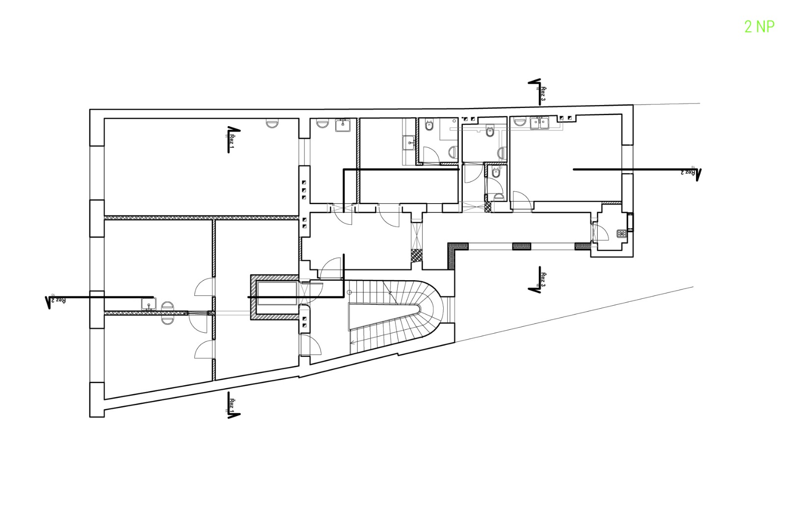
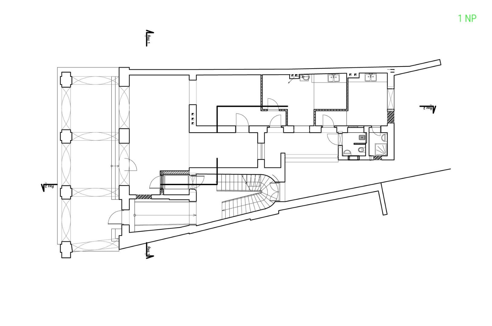
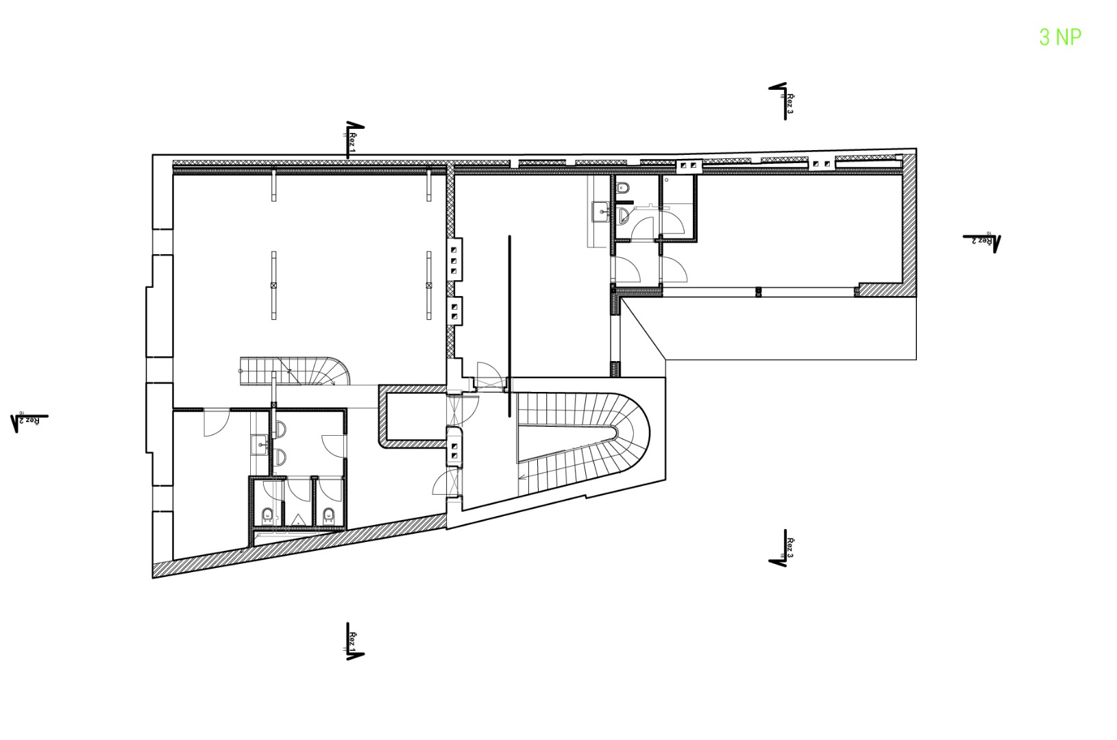
Zavřít REKOSTRUKCE LÉKÁRNY U ANDĚLA STRÁŽCE
V LITOMYŠLI

Více informací o projektu rekonstrukce najdete zde

 

Foto: Nikola Tláskalová pro LAM, 2017
© Nikola Tláskalová a Městská galerie Litomyšl

 


^

ellement architects s.r.o.
nad ovčírnou II. 1295, 76001 Zlín
Czech Republic



© ellement architects 2002 - 2026