Zavřít Dům v Luhačovicích

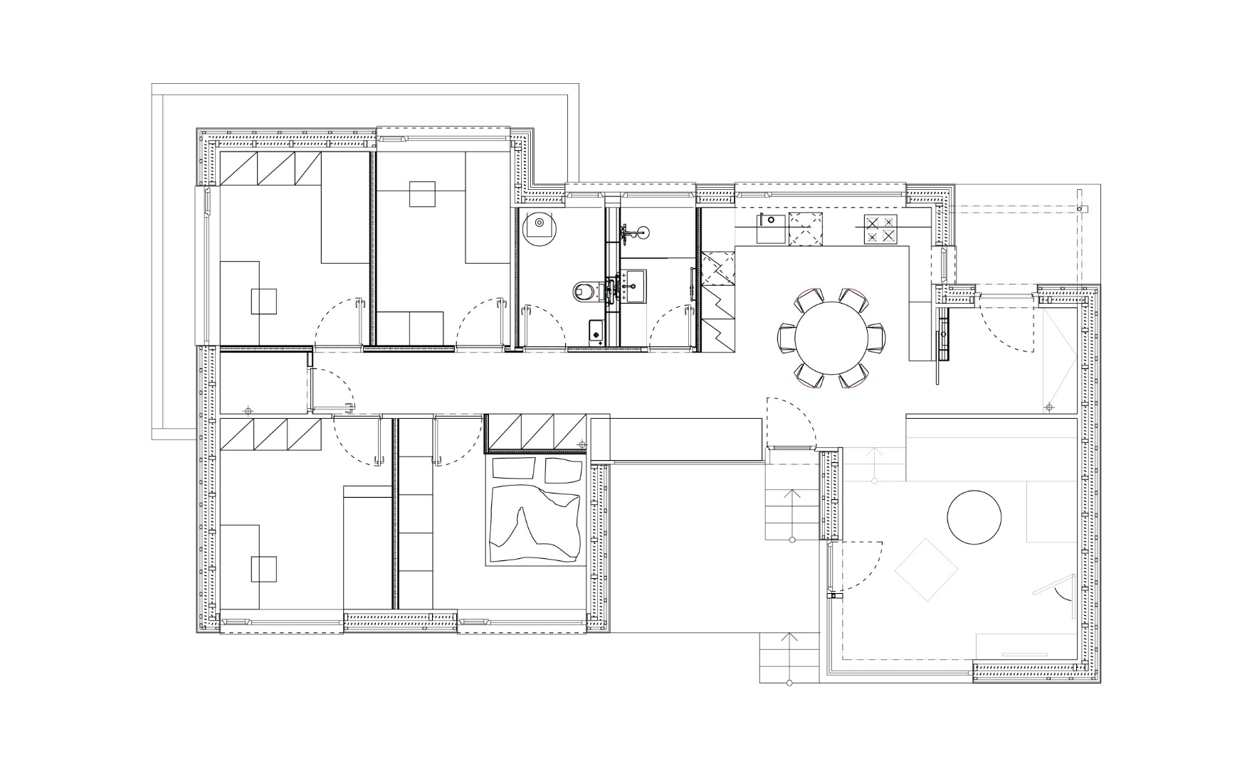
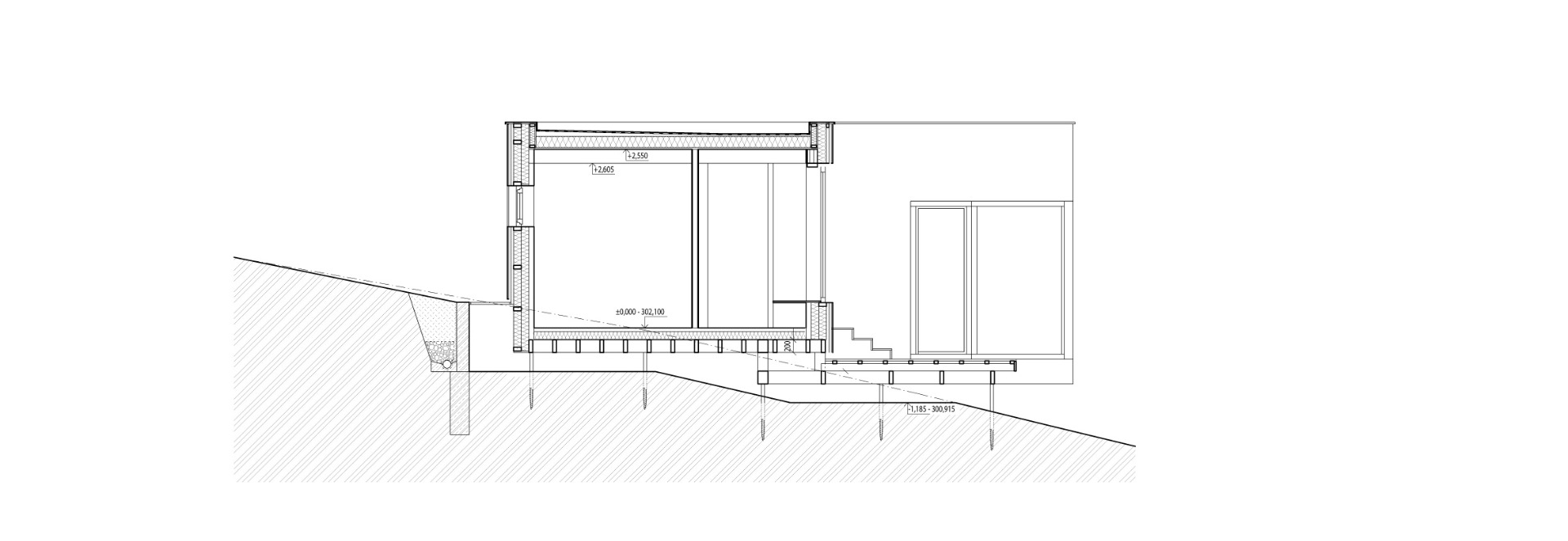
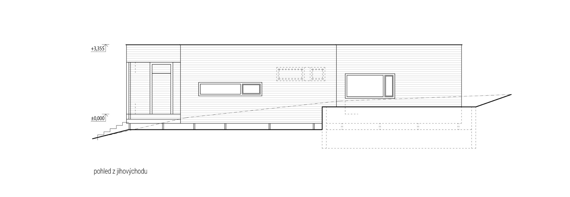
Pozemek u lesa s výhledem na lázeňské město Luhačovice si pro svůj rodinný dům vybral mladý pár. Dům je s ohledem na finanční možnosti navržen jako horizontální přízemní objekt, ukončující hranici lesa a zástavbu města. Dvě výškové úrovně vytvářejí nepatrné “rozposunutí” v rámci vnitřního prostoru stavby. Před realizaci bylo z důvodů optimalizace ceny rozhodnuto o založení objektu na zemních vrutech. Dům zdánlivě “levituje” nad městem a díky fasádě z dřevěného obkladu se postupně stává součásti krajiny. Dispoziční řešeni spočívá ve dvou výškových úrovních, v jedné se nachází obytná kuchyně, koupelna, pokoje. V druhé úrovni je o pár schodů níže po svahu položen obývací pokoji a díky tomu se zvedá jeho světlá výška, která přidává prostoru na vzdušnosti. Jinak kompaktní hmota je přerušena mezi obývákem a ložnicí venkovním prostorem terasy. Dům je postaven z CLT panelu, které jsou přiznané v interiéru a strop je dřevěný trámový.

autoři: Ellement / ing. arch. Jitka Ressová
ing. arch. Hana Maršíková
ing. arch. Kateřina Páterová

stavební řešení: BcA. Michal Babic 
statika: Ing. Oto Nový

studie: 2016
realizace: 2018

Foto: Dušan Tománek


^

ellement architects s.r.o.
nad ovčírnou II. 1295, 76001 Zlín
Czech Republic



© ellement architects 2002 - 2026