Zavřít COURAGE CONCEPT STORE

Courage concept store


interier obchodu s designovou módou a doplňky od českých návrhářů na zlínském zámku.

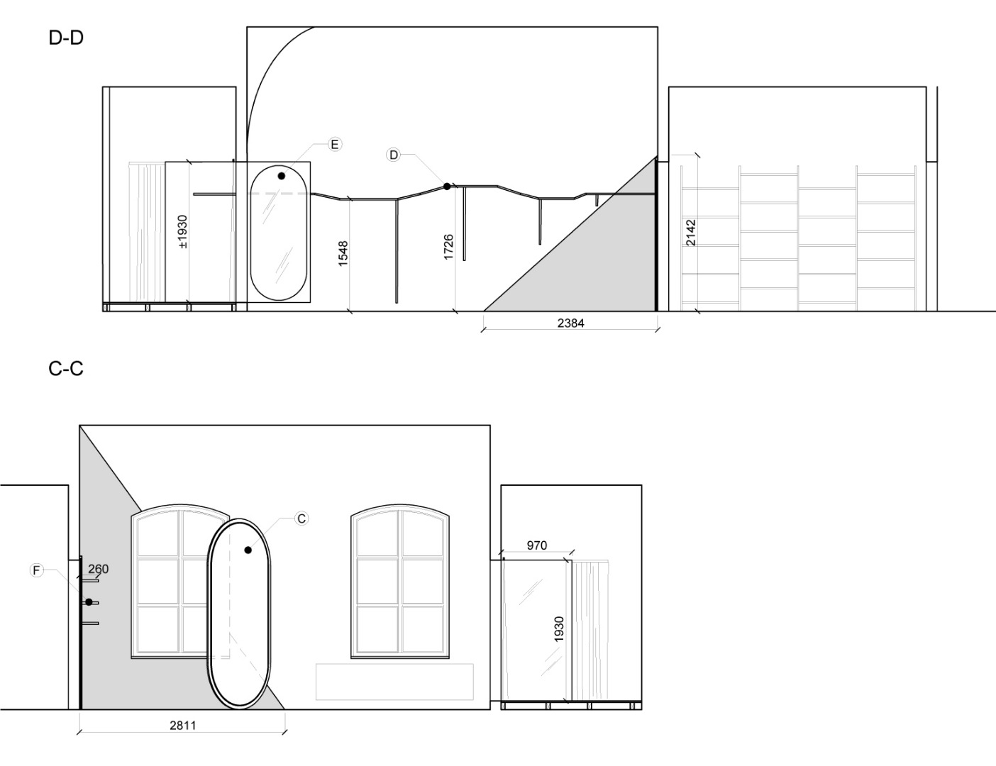
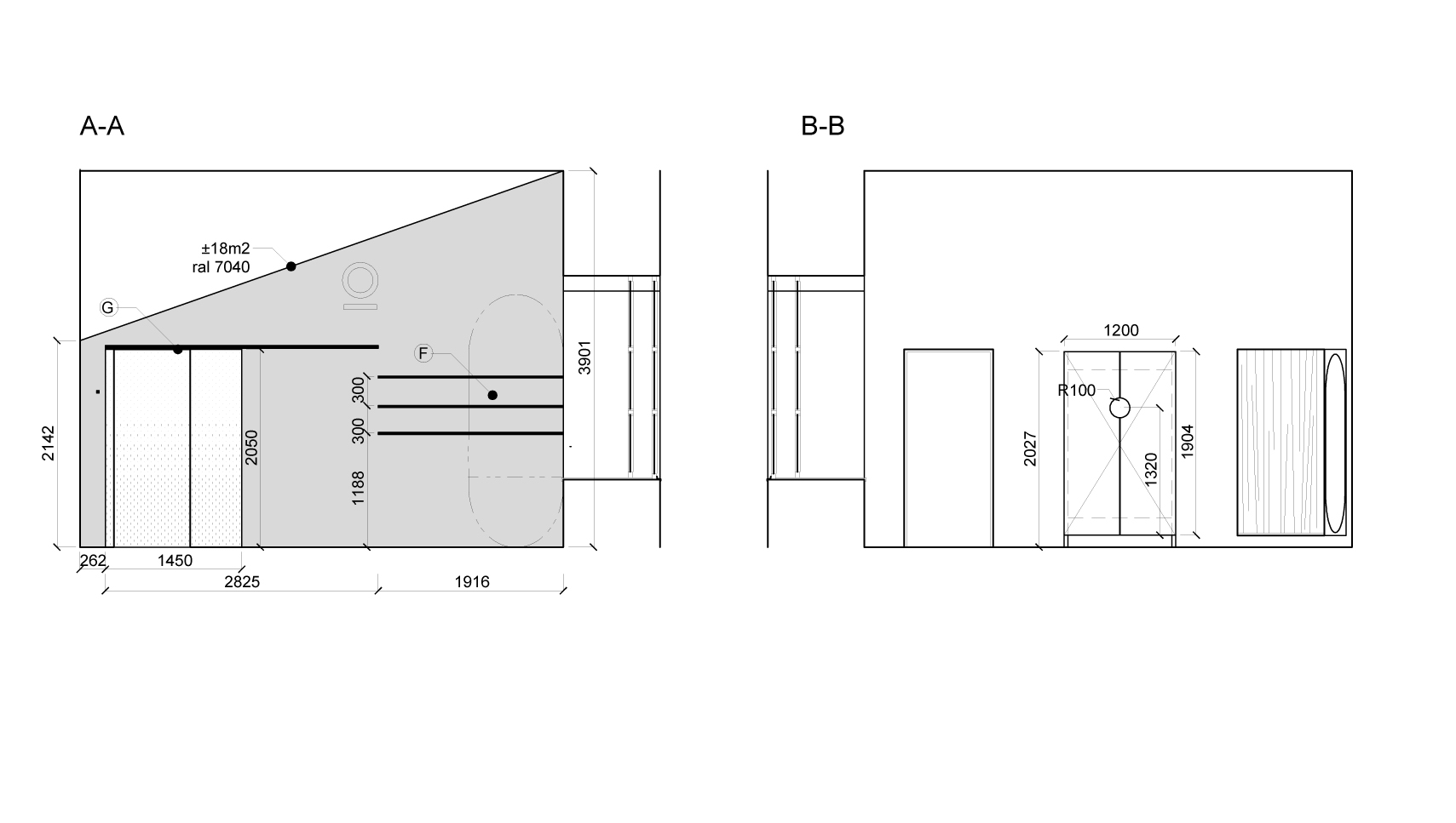
Na kamenou šedou podlahu jsme navrhli jednoduchý nábytek z dřevotřísky, základní geometrické tvary, velké oválné zrcadlo kryje zázemí obchodu.

Jen neutrální barvy, surové materuály, ať vyzní designové artefakty.

 

investor: Iveta Stavjaníková
design: Jan Pavézka, Hana Maršíková / ellement architects

realizace 2017

foto: Libor Stavjaník TOAST + archiv ellement


^

ellement architects s.r.o.
nad ovčírnou II. 1295, 76001 Zlín
Czech Republic



© ellement architects 2002 - 2026