Zavřít CHATA NA SIRÁKOVĚ

 

Prostorové a tvarové řešení objektu vychází ze svažitosti pozemku a orientace ke světovým stranám. Sklon střechy je na jih pro umístění a maximální využití fotovoltaických panelů.

 

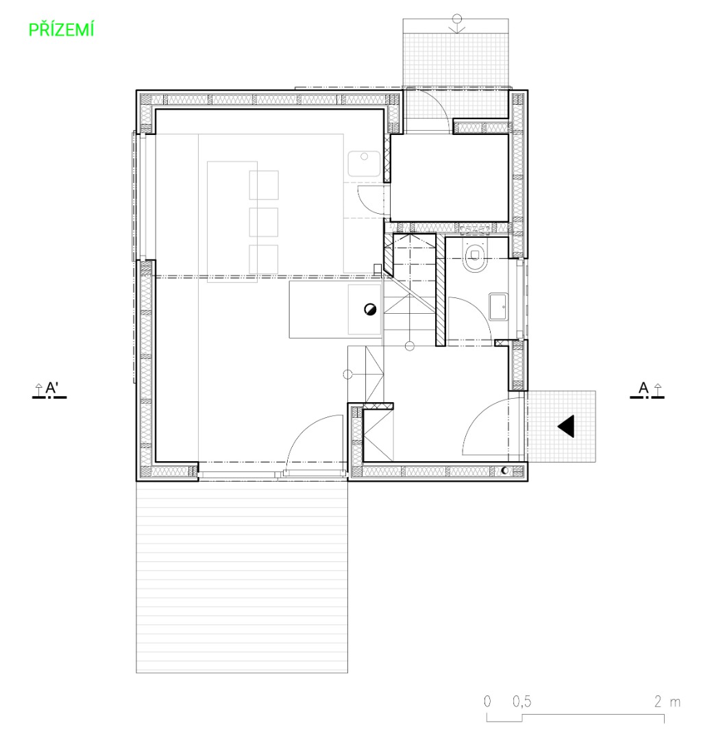
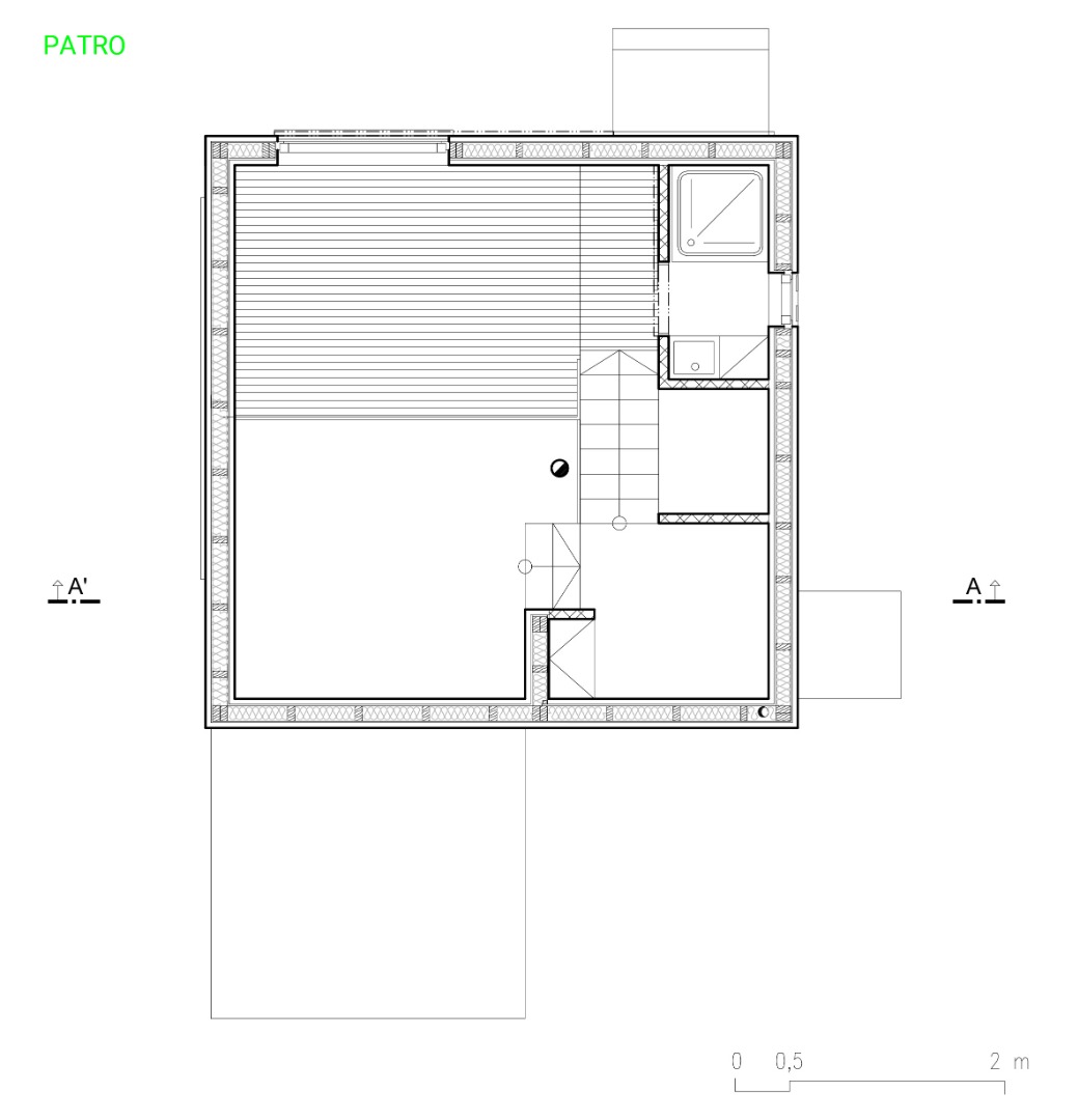
Objekt je navržen jako chatka ke krátkodobému pobytu. Tvarově se jedná o jednoduchý kubus, se střechou – pultovou klesající k jednomu rohu – vstupu. Uvnitř je objekt prostorově členěný – vstupní podesta je cca o 50cm výš než obytné patro, spaní s hygienickým zázemím se nachází v otevřeném mezipatře. Osazením objektu na terén vzniká u vstupní části podsklepení. Objekt má hlavní terasu otočenou na jiho-západní stranu. Výstup má i na stranu opačnou – servisní. Všechny otvory jsou uzavíratelné okenicemi. Materiálově je objekt sjednocen – vnitřek i vnějšek je opláštěn modřínovým dřevem. Napojení na sítě je řešeno ostrovním systémem.

 

Dispoziční členění

Ze zádveří se po vyrovnávacím schodišti dostaneme do hlavního obytného prostoru s výstupem na venkovní terasu. Napravo od vstupu je toaleta a schodiště na mezonet se spaním a sociálním zařízením. Obytný prostor je propojen dveřmi s bočním vstupem se skladem. V podsklepené části je technická místnost.

 

Materiálové řešení

Chata je řešena jako dřevostavba na betonové podlahové desce a betonových základech. Dřevostavba je řešena jako hrázděná konstrukce s výplní z minerální vaty a bedněním stěn. Střecha je dřevěná trámová se záklopem. Střešní hydroizolace je z folie, izolace proti zemní vlhkosti je z asfaltových pásů. Podlahy jsou dřevěné s nášlapem z prken nebo ocelového plechu.

 

Autoři:
ing. arch. Hana Maršíková
ing. arch. Jitka Ressová
ing. arch. Kateřina Páterová

spolupráce:
Ing. Pavel Ohnoutek

foto:
Dušan Tománek

 

 


^

ellement architects s.r.o.
nad ovčírnou II. 1295, 76001 Zlín
Czech Republic



© ellement architects 2002 - 2026