Zavřít BYTOVÝ DŮM V OBCI ŠUMICE

Novostavba objektu bytového domu 7b.j.v rámci sociálního bydlení

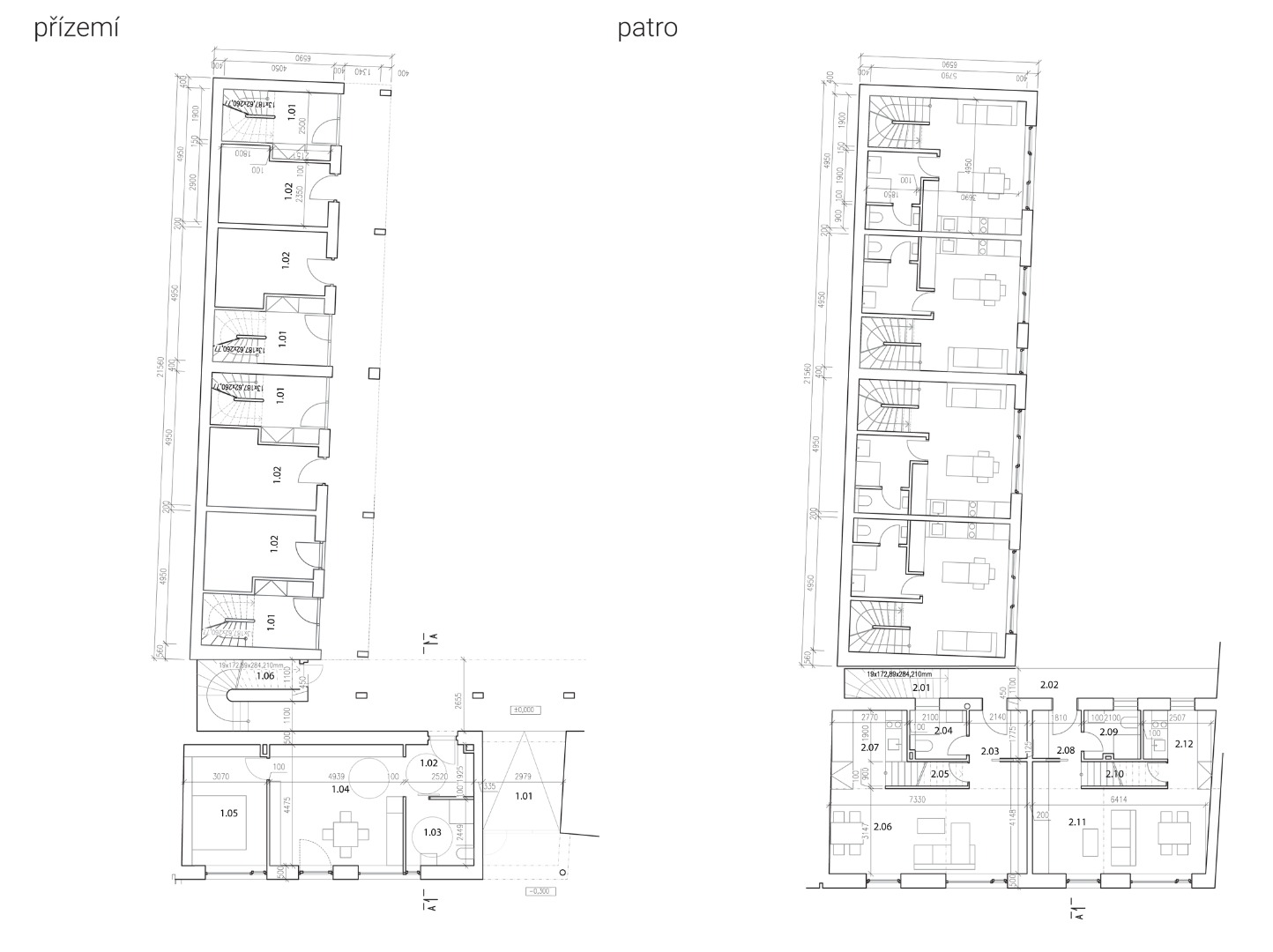
Objekt je navržen jako bytový dům určen k sociálnímu bydlení v obci. Je rozdělen do dvou hmot – směrem do ulice je navržen jako dvoupodlažní se sedlovou obytnou střechou a směrem do dvora je dvoupodlažní s podkrovím pod střechou pultovou. Dvorní a uliční část je oddělena schodištěm. Tvarově se jedná o jednoduché hmoty, které vychází z charakteru zástavby v obci.

Dvorní i uliční část bytového domu je přístupná průchodem, který díky rozměrům umožňuje i průjezd vozidla pro manipulaci. Objekt do ulice má v přízemí bezbariérový byt velikosti 2+kk, vstup je krytý pavlačí. Přístup do 2.NP je po otevřeném schodišti na pavlač, ze které jsou přístupné dvě bytové jednotky velikosti 3+1, využívající prostor podkroví. V bytech je místnost nahrazující sklepní „kóji“, místnost skladu. Pro uskladnění kol, je možné využít i prostor pavlače. Byty ve dvorní části jsou třípodlažní, každý byt má samostatný vstup z veřejného prostoru a samostatné schodiště. V přízemí se nachází vstup z technickou místností - skladem, který je přístupný i veřejného prostoru, v patře se nachází společný obytný prostor, v 3.NP je ložnice s terasou. Zvolená koncepce řešení eliminuje vnitřní společný prostor vyžadující úklid a údržbu, zároveň však iniciuje příjemný společný pobytový prostor vnější.

 

Fasáda objektu navazuje na tradiční řešení fasád na vesnici v období 60.-70.let a je řešena v břizolitu s grafickou úpravou nut navazujících na okna. Střecha je ze světlé betonové krytiny, zábradlí a výplně jsou navrženy z nerezových sítí.

 

autoři: ellement
ing.arch. Jitka Ressová, ing.arch. Hana Maršíková, ing.arch. Kateřina Páterová

investor:
obec Šumice

projekt a realizace: 2016 - 2021

 

 


^

ellement architects s.r.o.
nad ovčírnou II. 1295, 76001 Zlín
Czech Republic



© ellement architects 2002 - 2026