Zavřít RODINNÝ DŮM KBELY

 

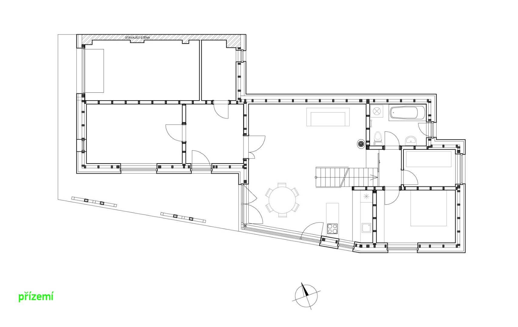
Novostavba rodinného domu v Kbelích u Prahy je volně stojícím objektem přiléhajícím ke stávající stavbě garáže. Do tvaru domu se promítlo přání investora zachovat garáž a vzrostlou třešeň v severovýchodním rohu pozemku a vzhledem k plánované stavbě sousedního objektu také zpracovaná studie oslunění, která měla vliv na umístění oken. Dům je dvoupodlažní jen ve východní části, denní prostor je pod zvýšenou pultovou střechou. Nosnou část domu tvoří dřevěná rámová konstrukce (systém two by four) s dřevěnými stropy a střechou. Odvětranou fasádu tvoří modřínová prkna na roštu.

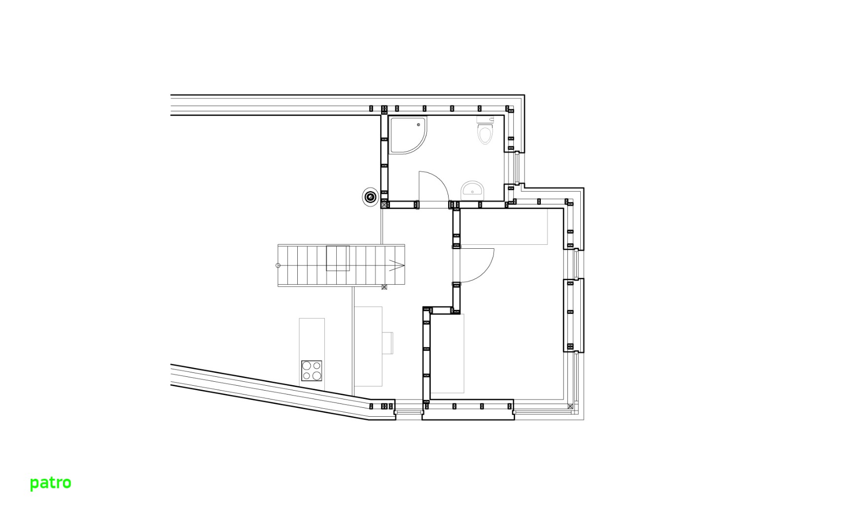
Vstup do domu je z venkovní dřevěné terasy, která zároveň vytváří kryté zápraží. Centrální část tvoří spojitá denní místnost s výstupem do zahrady s velkým oknem, které se dá zaclonit posuvnou okenicí. Přímé schodiště, sloužící zároveň jako úložný prostor, rozděluje místnost na dvě části, směrem do zahrady se nachází jídelní část s kuchyňskou nikou a směrem ke severní stěně je umístěn obývací prostor. Na podestě v patře se nachází pracovna, dětský pokoj a malá koupelna, v přízemí pod vloženým patrem je umístěna malá ložnice, pokoj a koupelna. Dům je vytápěn sálavými panely a kamny na dřevo.

 

Cílem návrhu bylo osadit dům do zahrady tak, aby se zahrada stala rozšířeným obytným prostorem a západní slunce si našlo cestu do denní místnosti, aby se dům stal příjemným a vlídným ke svému okolí a respektoval povahu jeho obyvatel.

 

 

autor: ellement, Ing. arch. Jitka Ressová, MgA. Jan Pavézka

spolupráce: ing. arch. Petra Martináková

studie: 2011

realizace: 2012-13

 

stavební řešení: Ing. Daniel Machander (Porsenna Stavební s.r.o.)

realizace: Porsenna Stavební s.r.o.

 

foto: Petr Karšulín a archivellement

 

 


^

ellement architects s.r.o.
nad ovčírnou II. 1295, 76001 Zlín
Czech Republic



© ellement architects 2002 - 2026