Zavřít STUDIE VÍKENDOVÉHO DOMU V JAVORKU

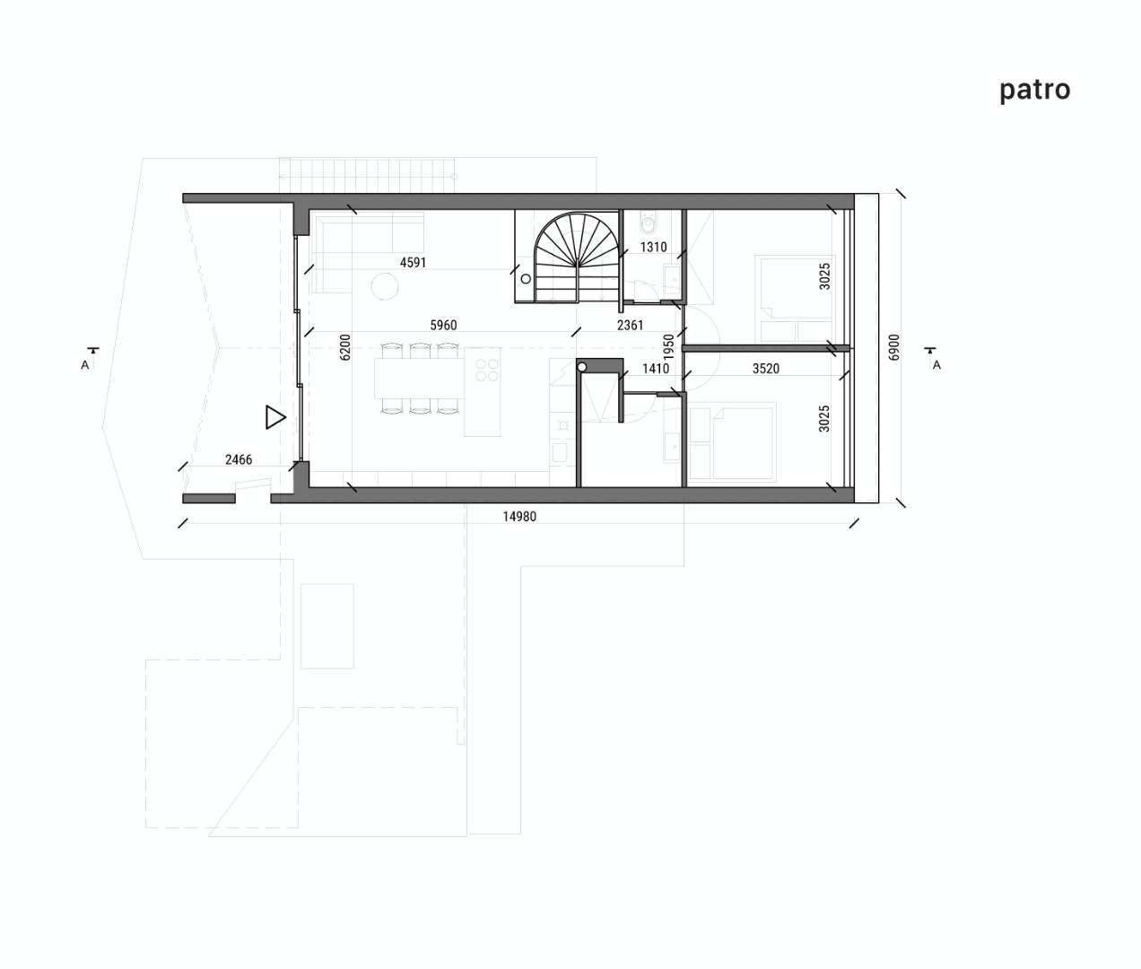
Už po první návštěvě pozemku jsme se shodli na jednoznačné koncepci domu. Hlavní hmota domu bude umístěna kolmo na svah a bude se do něj přirozeně zařezávat. V přízemní části budou umístěny ložnice, vstup a servisní místnosti, v horní části – krovu, bude obytná společenská část. Ta se bude otevírat do svažité zahrady a zároveň využívat západní sluneční svit dopadající přes zalesněnou hranu kopce. Směrem k jihu bude ve spodní části vytvořeno jednopatrové křídlo, tak aby vznikl částečně uzavřený dvůr.
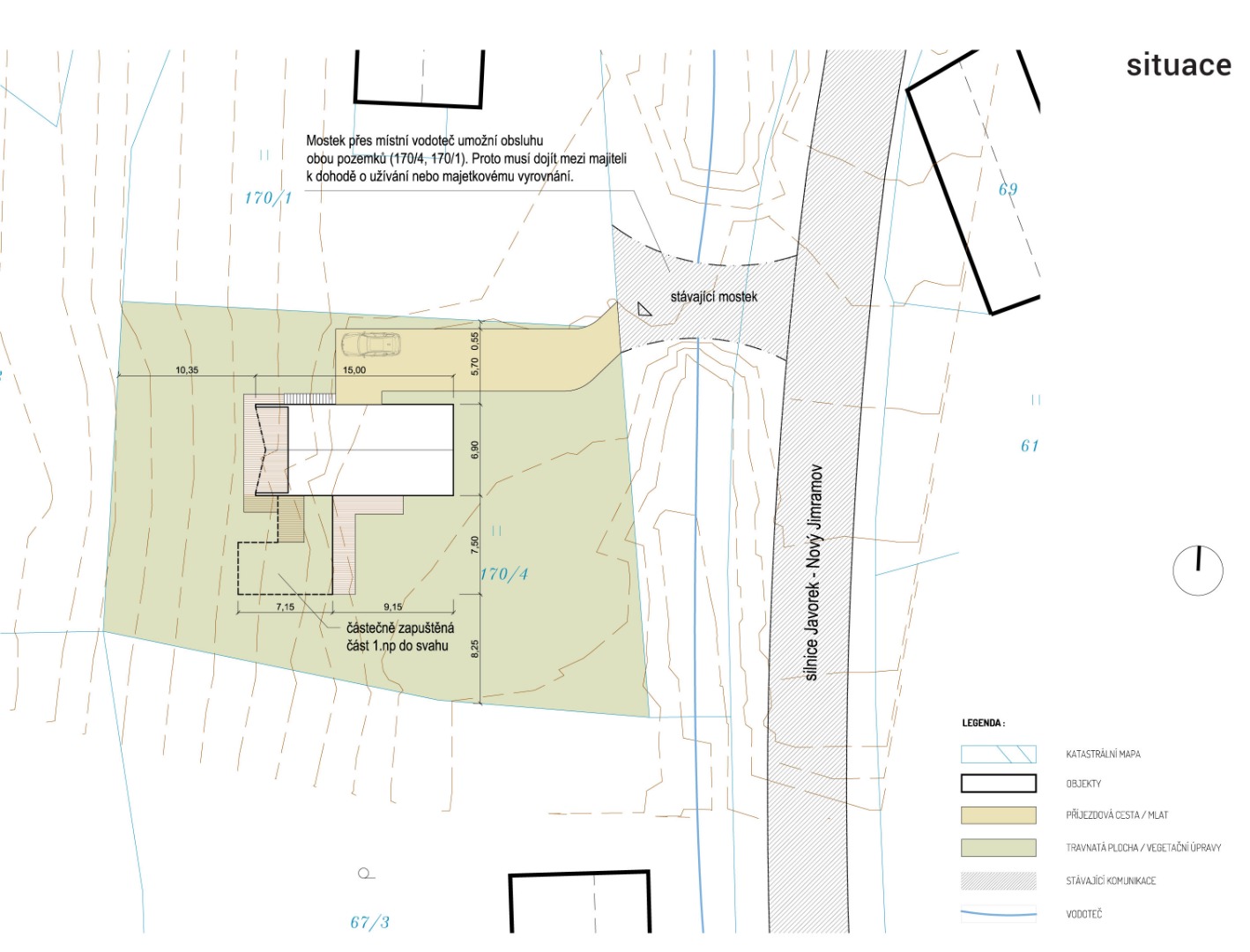
Ze severní části bude příjezd k domu a hlavní vstup.
Hmota domu stejně tak i materiálové řešení splňuje podmínky dané CHKO. Dům je přízemní s podkrovím. Spodní část bude omítaná, štít i střechy směrem na sever budou materiálově sjednoceny. Materiál střechy - je navržena plechová šablona. Štít bude řešen jako preferovaný, evokující pocit šablony, za ním se bude nacházet prosklení. Ze západní strany bude štít řešen velkou prosklenou plochou. Dvorní křídlo bude obloženo dřevem, tak aby co nejvíce připomínalo dřevěné „kůlny“, přistavované k objektům. Dřevo bude prostupovat i do interiéru. V rámci teras (výstup ze společenské části směrem do svahu a využití střechy nad dvorní částí bude dřevěná terasa) i do exteriéru.
Přistínění obytné části z jižní strany je navrženo osadit sluneční plachtou.
Stavební program splňuje zadání investora. Dům má mít společenský prostor – pro setkávání rodiny a přátel,
obsahující komfortní kuchyň, velký jídelní stůl, pohodlné relaxační sezení a ohniště. Mimo to byl požadavek na 4 ložnice, ateliér, saunu a vinný sklípek. Mělo být umožněno pronajímání části domu pro rekreaci.
Díky uspořádání dispozice domu do dvou podlaží je zadání naplněno.
V přízemí se nachází dvě ložnice, hygienické zázemí, sauna, ateliér, technická místnost a sklípek. V podkroví společenská část a dvě ložnice s hygienickým zázemím. Dům má dvě nezávyslá ohniště – kamna, v přízemí a podkroví. Přízemí a podkroví se dají využívat samostatně, schodiště do podkroví je navrženo jako uzavíratelné, do spodního i horního podlaží je samostatný vstup.

 


^

ellement architects s.r.o.
nad ovčírnou II. 1295, 76001 Zlín
Czech Republic



© ellement architects 2002 - 2026